Logo Metaroom by Amrax

Schluss mit Nachzeichnen von Plänen.

Nutze deine Zeit besser.

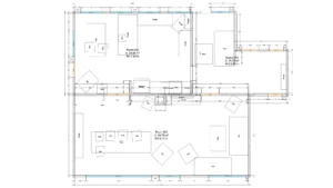
Erhalte detaillierte 2D-Grundrisse aus den Metaroom-Scans – als DXF- und PDF-Berichte, schneller als je zuvor.

4.5 • 800+ Bewertungen

✓ Kostenlos starten • Keine Kreditkarte erforderlich. • 20.000+ Experten vertrauen Metaroom

Partner und Kooperationen

3 einfache Schritte zu perfekten Grundrissen

Kein Messen, kein Skizzieren, kein Neuzeichnen. Du erhältst in Minuten präzise, sofort nutzbare Pläne.

a 45 years old caucasian man is scanning a room with his iphone 16 Pro.

App downloaden

Kostenloser Download für iOS. Funktioniert mit jedem iPhone Pro oder iPad Pro mit LiDAR.

iPhone Pro scanning a room for Pytha export

Scanne deinen Raum

Scanne mit deinem iPhone den Raum. Dauert nur 2–3 Minuten pro Etage.

Pläne herunterladen

Erhalte sofort professionelle 2D-Grundrisse als DXF- und PDF-Dateien.

Alle Fotos. Keine weiteren Besuche.

Automatische Fotodokumentation mit Maßen

2D floor plan with linked snapshot photos and measured building elements shown in a PDF report for documentation and energy planning.

Fotos und Maße sind im PDF-Bericht enthalten

Fotos, die während des Scans aufgenommen wurden, werden automatisch mit allen Messwerten zum Bericht hinzugefügt.

Direkt in Metaroom Workspace messen

Entnimm Abstände und Maße direkt aus deinen Scans und Snapshots vor Ort. Alle Messungen werden mit dem entsprechenden Raum und Element gespeichert und sind somit bereit für Planung, Berechnungen und Dokumentation.

Arbeite bei jedem Projekt smarter.

Konzentrier dich auf den wertvollen Teil deiner Arbeit. Metaroom übernimmt das Messen, Zeichnen und Dokumentieren.

Präzise Raumerfassung

Erfasse exakte Geometrien und Maße mit dem LiDAR-gestützten Scan.

Sofort fertige 2D-Grundrisse

Erstelle saubere PDF- und DXF-Pläne – ganz ohne manuelles Zeichnen oder Nacharbeit.

Nahtlose CAD-Integration

Nutze deine 2D-Pläne in deinem CAD-Workflow oder einfach nur als pdf.

Schnellere Dokumentation

Reduziere deinen Zeitaufwand vor Ort und erstelle Unterlagen in Minuten statt Stunden.

✓ Kostenlos starten • Keine Kreditkarte • 20.000+ Profis vertrauen Metaroom

Von Fachleuten in ganz Europa genutzt

Echte Ergebnisse von Expert:innen, die händisches Messen und Nachzeichnen durch einen einzigen Scan und sofort präzise 2D-Grundrisse ersetzt haben.

Photo 4

„Ich habe meine Dokumentationszeit mehr als halbiert. Was früher Stunden gedauert hat, erledige ich heute in wenigen Minuten.“

Markus H. – Elektroplaner

Photo9

„Die Genauigkeit ist genau das, was ich für Heizlastberechnungen und meine 2D-Pläne brauche.“

Hans S. – Energieberater

Photo1

„Eine einfache Möglichkeit, saubere 2D-Pläne zu erstellen – selbst bei komplexen Räumen. Ich nutze es in jedem Projekt.“

Carla M. – Innenarchitektin

Seit langem mit 4,5 Sternen von Profis bewertet

Häufig gestellte Fragen (FAQ)

Ja, wir bieten eine 30-tägige Testversion des Metaroom Workspace an, für die keine Kreditkarte erforderlich ist. Während dieses Zeitraums hast du vollen Zugriff auf das Pro-Paket, einschließlich unbegrenzter Scans und aller Exportformate.

Die Metaroom Scan App ist exklusiv im Apple App Store erhältlich und mit LIDAR-ausgestatteten Apple Pro Geräten (iPhone 12 Pro und neuer, iPad Pro 2020 und neuer) kompatibel. Du kannst die App kostenlos herunterladen, indem du hier klickst.

Du kannst deine gescannten Räume in drei 2D-Formaten herunterladen: 2D-DXF zur Verwendung in CAD-Software, 2D-Grundriss und 2D-Projektbericht im PDF-Format.

Der 2D-Projektbericht (PDF) enthält detaillierte 2D-Grundrisse des gescannten Raums, Raumaufteilungen mit genauen Maßen, eine Liste der Raumobjekte mit Maßen, visuelle Schnappschüsse, die während des Scans aufgenommen wurden, sowie Maße für Abmessungen, Flächen und Umfänge, die sowohl imperiale als auch metrische Einheiten enthalten.

Ja, alle unsere Abonnements beinhalten den Export von 2D-Grundrissen. Wenn du nur 2D-Grundrisse für deine Projekte benötigst, empfehlen wir dir das Starter-Abo, das auf 2D-Exporte beschränkt ist und den günstigsten Preis bietet.

Bereit für weniger Fehler und schnellere Angebote?

Über 20.000 Fachleute setzen bereits auf sofortige 2D-Grundrisse – jetzt bist du dran.
4.5

App-Bewertung

20.000 +

Fachleute

100.000 +

Gescannte Räume

80.000 +

Exporte

Kostenlos starten. Keine Kreditkarte erforderlich.

Download Metaroom Scan App for free!

Metaroom App Scanning

Lade die Metaroom Scan App kostenlos herunter!

Metaroom App Scanning